Przedział czasowy

POVLJANA 2-pokojowe mieszkanie z dużym tarasem na 2. piętrze w nowoczesnym budynku ► 165 000 €

Wygasa

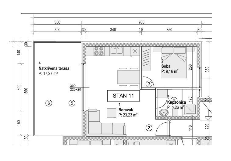
Na sprzedaż dwupokojowe mieszkanie (S11) z dużym tarasem na 2. piętrze w nowym, nowoczesnym apartamentowcu w Povljanie na wyspie Pag.

Składa się z:

  • salonu z kuchnią i jadalnią (23,23 m²),

  • sypialni (9,16 m²),

  • łazienki z WC (4,26 m²)

  • oraz zadaszonego tarasu o powierzchni 17,27 m².


Mieszkanie będzie klimatyzowane i wyposażone w sprzęt najwyższej jakości.
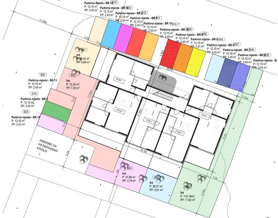
Do mieszkania przynależy również miejsce parkingowe BR 11 o powierzchni 12,15 m².
Zaledwie 350 metrów do plaży.


Planowane zakończenie prac latem 2026 r.

 

W tej inwestycji dostępne są również INNE UKŁADY APARTAMENTÓW! Jeśli szukają Państwo czegoś większego lub na innym piętrze, prosimy o kontakt.

CENA: 165 000 € + 3% prowizji

1
10
11
12
13
2
3
4
5
6
7
8
9